Call Us: 9821280690 / 8828216650 - Mail: naveed@nddesigngroup.net

Projects

Commercial Project 3

ND DESIGN is an end-to-end provider of interior design services based out of Mumbai. We offer interior design solutions for residential and commercial spaces.

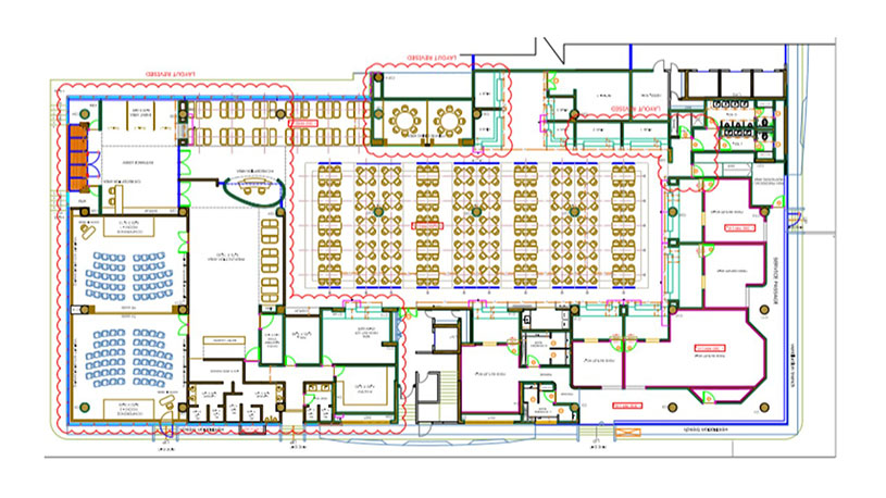
Project Name: Food Court

Location: Equinox Park, BKC

Project Architect: J.P Parekh

Total Carpet Area: 16,500

Duration: 4 months

Scope of Work: Turnkey Interior Including MEP